Khám phá bản vẽ thang máy kính từ A–Z: kích thước, cấu tạo, tiêu chuẩn lắp đặt, tối ưu cho nhà phố hiện đại.
Bản vẽ thang máy kính – Nền tảng để xây dựng giải pháp tối ưu
Trong một công trình kiến trúc hiện đại, mỗi chi tiết đều cần sự tính toán kỹ lưỡng để đảm bảo hiệu quả sử dụng lâu dài. Đặc biệt, với thang máy kính – một hạng mục đòi hỏi cao về tính thẩm mỹ, kỹ thuật và an toàn, thì bản vẽ kỹ thuật đóng vai trò trụ cột đầu tiên trong quá trình thiết kế và triển khai. Việc xây dựng bản vẽ thang máy kính không chỉ giúp hình dung tổng thể thiết bị mà còn ảnh hưởng trực tiếp đến tiến độ thi công, chất lượng vận hành và sự hài hòa với không gian nội thất.
1. Bản vẽ – Khởi điểm của mọi giải pháp kỹ thuật
Trước khi bắt tay vào xây dựng giếng thang hay lắp ráp bất kỳ bộ phận nào, nhóm kỹ sư bắt buộc phải có trong tay bản vẽ thang máy kính được thiết kế riêng cho từng công trình. Tùy vào vị trí lắp đặt, số tầng, diện tích sàn và kiểu kiến trúc, mỗi bản vẽ lại có những điều chỉnh tương ứng để phù hợp.
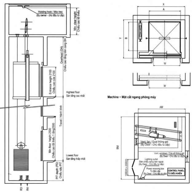
Bản vẽ không chỉ phản ánh cấu tạo của thiết bị mà còn thể hiện rõ kích thước hố pit, chiều cao đỉnh giếng (OH), chiều sâu hố thang, cửa tầng, cũng như các khoảng cách an toàn tối thiểu với trần, tường và không gian xung quanh. Từ đó, đội ngũ thi công có thể chủ động điều chỉnh các yếu tố xây dựng mà không ảnh hưởng đến công trình tổng thể.
2. Giảm thiểu rủi ro phát sinh trong thi công
Một bản vẽ thang máy kính đầy đủ và chính xác sẽ giúp dự báo được những tình huống có thể phát sinh trong quá trình lắp đặt, như chênh lệch chiều cao sàn, không đủ diện tích hố pit hay không đạt tiêu chuẩn chiều cao giếng thang. Khi xử lý tốt ngay từ khâu bản vẽ, chủ đầu tư sẽ tiết kiệm đáng kể chi phí sửa chữa, không cần đục phá, tái xây dựng hoặc làm lại móng nền.
3. Tạo tiền đề cho thiết kế nội thất hài hòa
Không giống với các loại thang máy vách kín truyền thống, thang kính đòi hỏi cao về tính đồng bộ thẩm mỹ với toàn bộ không gian sống. Việc sở hữu bản vẽ chuẩn giúp kiến trúc sư và đơn vị thi công nội thất biết được chính xác vị trí đặt thang, mặt hướng cửa, hướng ánh sáng và phối hợp vật liệu xung quanh như kính, đá, gỗ, ánh sáng trần… Từ đó, không gian trở nên thống nhất – sang trọng – hiện đại, thay vì lắp đặt mang tính chắp vá.
4. Tối ưu công năng, tiết kiệm diện tích
Với đặc điểm cấu trúc nhỏ gọn và linh hoạt, thang máy kính cho phép lắp tại nhiều vị trí như cạnh cầu thang bộ, giếng trời, giữa phòng khách hoặc mặt tiền nhà phố. Tuy nhiên, để làm được điều đó, bản vẽ thang máy kính cần được tính toán sao cho tận dụng được tối đa diện tích sẵn có mà vẫn đảm bảo hành lang an toàn, dễ tiếp cận và không cản trở lối đi chung. Đây cũng là lý do bản vẽ không thể dùng chung hay lấy mẫu đại trà.

Các loại bản vẽ thang máy kính phổ biến hiện nay
Bản vẽ thang máy kính không đơn thuần là một tờ giấy kỹ thuật. Nó là sự kết hợp giữa kiến trúc, cơ khí và mỹ thuật – nơi tất cả các yếu tố cấu thành được mô phỏng chính xác đến từng chi tiết. Dưới đây là những loại bản vẽ quan trọng nhất trong quá trình thiết kế và thi công thang máy kính hiện nay.
1. Bản vẽ mặt bằng thang máy kính
Đây là bản vẽ thể hiện cấu trúc tổng thể của hố thang nhìn từ trên xuống. Nó giúp kỹ sư xác định vị trí đặt thang máy trong ngôi nhà hoặc công trình. Các yếu tố như chiều dài – chiều rộng giếng thang, khoảng cách đến tường, hướng cửa thang, cửa tầng, hướng di chuyển đều được thể hiện rõ ràng.
Bản vẽ này có vai trò quyết định trong việc lựa chọn vị trí lắp đặt tối ưu, tránh xung đột với hệ kết cấu chịu lực của nhà, cũng như tạo điều kiện cho việc lên phương án nội thất sau này.
2. Bản vẽ mặt đứng và mặt cắt kỹ thuật
Đây là loại bản vẽ phản ánh chiều cao toàn bộ hệ thống thang, từ hố pit (hầm bên dưới) đến điểm cao nhất của giếng thang (OH – Overhead). Đồng thời, bản vẽ mặt cắt cũng mô tả các tầng dừng, cao độ sàn, hành trình cabin và cơ cấu vận hành bên trong.
Loại bản vẽ này đặc biệt quan trọng trong việc đảm bảo đúng tiêu chuẩn kỹ thuật khi thi công xây dựng giếng thang – nơi mọi sai số nhỏ đều có thể ảnh hưởng đến khả năng vận hành sau này.
3. Bản vẽ phối cảnh 3D thang máy kính
Đây là dạng bản vẽ không bắt buộc trong hồ sơ kỹ thuật, nhưng lại rất cần thiết với các công trình dân dụng cao cấp, nơi chủ đầu tư quan tâm sâu sắc đến yếu tố thẩm mỹ. Bản vẽ phối cảnh giúp hình dung rõ chiếc thang sau khi lắp đặt sẽ trông như thế nào trong không gian sống, từ màu kính, tay vịn, trần cabin đến cửa tầng…
Với những công trình mang tính kiến trúc như biệt thự, homestay, nhà phố cao cấp, bản vẽ phối cảnh đóng vai trò thuyết phục khách hàng từ cái nhìn đầu tiên.
4. Bản vẽ kỹ thuật thi công chi tiết
Bao gồm hệ thống liên kết các bộ phận như khung ray, ray dẫn hướng, motor kéo, hệ thống điện, bảng điều khiển, khung bao, và các chi tiết cơ khí khác. Đây là phần bản vẽ chuyên sâu, thường chỉ dùng cho kỹ sư cơ điện và đội lắp đặt của hãng sản xuất.
Tại Faralift, mỗi công trình đều có bản vẽ riêng biệt, không dùng mẫu cố định. Đội ngũ kỹ sư sẽ khảo sát thực địa, lên bản vẽ chính xác, tùy theo diện tích, vị trí đặt thang và yêu cầu thẩm mỹ của khách hàng. Việc cá nhân hóa này giúp đảm bảo độ bền – độ an toàn và tối ưu hóa chi phí trong từng trường hợp cụ thể.

Các thông số kỹ thuật cần lưu ý trong bản vẽ thang kính
Để đảm bảo thang máy kính vận hành an toàn, hiệu quả và hài hòa với không gian sống, bản vẽ kỹ thuật cần thể hiện chính xác từng thông số liên quan đến kích thước, tải trọng, kết cấu giếng thang và các yếu tố phụ trợ. Dưới đây là các thông số quan trọng không thể bỏ qua trong bản vẽ thang máy kính.
1. Kích thước hố thang và giếng thang
Chiều rộng – chiều sâu giếng thang: Thông thường dao động từ 1300mm đến 1800mm tùy theo tải trọng và loại cửa. Diện tích này cần phù hợp với tổng diện tích công trình và không gian sử dụng thực tế.
Khoảng cách an toàn đến tường: Cần chừa ít nhất 50–100mm ở mỗi phía để lắp khung thép và kính bao ngoài.
Độ dày sàn tầng và nền hố pit: Thường dao động từ 150–250mm, ảnh hưởng trực tiếp đến kết cấu chịu lực.
2. Độ sâu hố pit
Đây là khoảng cách từ mặt sàn tầng trệt xuống đáy hố thang. Với thang máy kính Faralift, độ sâu hố pit chỉ cần từ 100–200mm, giúp thi công nhanh, không ảnh hưởng kết cấu móng cũ.
Một số mẫu còn cho phép không cần hố pit nếu dùng nền âm hoặc xây thêm bệ dốc lên cabin.
3. Chiều cao Overhead (OH)
Là khoảng cách từ tầng cao nhất lên đến đỉnh giếng thang.
Với các dòng thang máy gia đình bằng kính, chiều cao này thường chỉ cần từ 2500mm–2800mm, phù hợp với trần thấp, đặc biệt là các căn nhà cải tạo.
4. Kích thước cửa tầng và cabin
Cửa tầng: Thường rộng 700–900mm, cao 2000–2100mm tùy không gian mở. Với thang máy kính, cửa mở tay hoặc cửa tự động dạng trượt ngang là phổ biến.
Cabin: Kích thước điển hình dao động 900×900mm đến 1100×1400mm. Cabin cần vừa đủ cho 2–4 người, không quá rộng gây tốn diện tích giếng thang.
5. Tải trọng và tốc độ
Thang kính gia đình thường có tải trọng từ 250kg – 450kg, đủ cho 2–5 người di chuyển cùng lúc.
Tốc độ vận hành thường ở mức 0.3–0.6 m/s – đảm bảo an toàn, vận hành êm ái, không gây ù tai hay mất thăng bằng.
6. Vị trí đặt tủ điện và bảng điều khiển
Với công nghệ không phòng máy, tủ điều khiển sẽ được gắn ngay sát tầng cao nhất hoặc trên khung giếng thang.
Bản vẽ thang máy kính cần thể hiện rõ vị trí đặt bảng điều khiển và đường đi dây, tránh ảnh hưởng đến thẩm mỹ.
7. Hướng mở cửa và lưu thông
Bản vẽ phải chỉ rõ cửa mở về bên nào, góc quay, lối thoát hiểm khi có sự cố.
Việc bố trí hợp lý giúp người lớn tuổi, trẻ em sử dụng dễ dàng và an toàn hơn.
➡️Tìm hiểu thêm về mặt bằng xây dựng thang máy kính

Tối ưu công năng và thẩm mỹ qua bản vẽ thang máy kính
Không chỉ là cơ sở để đảm bảo vận hành an toàn, bản vẽ thang máy kính còn đóng vai trò quan trọng trong việc tối ưu cả công năng lẫn giá trị thẩm mỹ của công trình. Sự kết hợp hài hòa giữa bố cục không gian và tính toán kỹ thuật giúp mỗi công trình sử dụng thang kính không chỉ tiện lợi mà còn sang trọng – đẳng cấp hơn.
1. Tận dụng không gian triệt để
Với những công trình nhà phố, biệt thự hay nhà cải tạo, diện tích dành cho giếng thang thường rất hạn chế. Vì vậy, bản vẽ cần đảm bảo việc tối ưu diện tích lắp đặt mà không gây ảnh hưởng đến kết cấu chịu lực hay lối di chuyển.
Bản vẽ mặt bằng sẽ giúp xác định vị trí lắp phù hợp:
- Lồng giữa cầu thang bộ
- Sát giếng trời
- Giáp tường mặt tiền
- Hoặc đặt tại trung tâm phòng khách
Mỗi vị trí đều đòi hỏi một cấu trúc khác nhau, và bản vẽ thang máy kính sẽ chỉ ra cách xử lý kỹ thuật phù hợp để giữ được sự thông thoáng mà vẫn bảo toàn kiến trúc ban đầu.
2. Hài hòa với kiến trúc nội thất
Thang máy kính có thiết kế trong suốt, giúp không gian trở nên mở rộng, liền mạch và hiện đại hơn. Nhưng nếu bản vẽ không chuẩn ngay từ đầu, sẽ rất dễ xảy ra tình trạng thang “lệch tông” với tổng thể không gian.
Các bản vẽ phối cảnh và kỹ thuật sẽ thể hiện chi tiết:
- Màu kính
- Kiểu cửa mở
- Vị trí bảng điều khiển
- Cách phối trần cabin, sàn cabin
- Mặt ngoài giếng thang (ốp inox, sơn tĩnh điện, hoặc giữ nguyên khung thép)
Tất cả những yếu tố trên đều phải được thể hiện từ sớm trong bản vẽ để giúp đơn vị nội thất đồng bộ thiết kế tổng thể từ đầu.
3. Hướng sáng và điểm nhấn kiến trúc
Thang kính không che chắn ánh sáng tự nhiên như thang truyền thống. Vì vậy, bản vẽ cần tính toán hướng mở cửa, hướng kính để tận dụng tối đa ánh sáng ban ngày, giúp tiết kiệm điện và tạo cảm giác thoáng đãng.
Ngoài ra, thang kính cũng có thể trở thành trung tâm kiến trúc nếu bản vẽ phối hợp tốt giữa ánh sáng, vật liệu và bố trí không gian. Ví dụ, nhiều biệt thự cao cấp sử dụng thang kính như một điểm nhấn ngay giữa phòng khách, kết hợp hệ thống đèn LED chạy trần cabin, sàn kính và tay vịn inox để tạo hiệu ứng thị giác mạnh mẽ.
4. Kết nối tổng thể công trình
Cuối cùng, bản vẽ giúp đội ngũ kỹ thuật và kiến trúc sư có tiếng nói chung. Việc thể hiện rõ ràng từng chi tiết từ ban đầu giúp mọi bên tham gia (chủ đầu tư, kỹ sư, đơn vị lắp đặt, đơn vị nội thất…) đồng bộ mục tiêu về thiết kế, tiến độ và ngân sách.
Trong quá trình xây dựng ý tưởng thiết kế thang máy kính, nhiều gia chủ vẫn còn băn khoăn giữa các phương án bố trí không gian, lựa chọn vị trí giếng thang hay cân đối giữa thẩm mỹ và công năng. Vì vậy, việc tham khảo trước một bài viết phân tích chuyên sâu về thang máy bằng kính sẽ giúp bạn hiểu rõ hơn về cấu trúc, vật liệu, tính ứng dụng và các yếu tố cần lưu ý trước khi triển khai bản vẽ chi tiết.
Faralift – Đơn vị cung cấp bản vẽ và lắp đặt thang máy kính chuyên nghiệp
Giữa hàng trăm thương hiệu trên thị trường, việc lựa chọn một đơn vị có thể tư vấn, thiết kế và thi công bản vẽ thang máy kính chính xác, tối ưu và phù hợp với công trình là điều không dễ dàng. Với hơn một thập kỷ đồng hành cùng hàng nghìn công trình trên toàn quốc, Faralift đã và đang là lựa chọn hàng đầu của nhiều kiến trúc sư, chủ đầu tư và hộ gia đình.
➡️Tìm hiểu thêm về thang máy bằng kính
1. Quy trình khảo sát và lên bản vẽ chi tiết theo yêu cầu
Không dùng mẫu bản vẽ cố định, Faralift triển khai bản vẽ theo từng công trình cụ thể, dựa trên khảo sát thực tế về diện tích, kết cấu, phong cách nội thất và nhu cầu sử dụng của khách hàng.
Quy trình diễn ra như sau:
- Khảo sát trực tiếp công trình (hoặc qua bản vẽ kiến trúc nếu đang xây dựng)
- Phân tích kỹ thuật: Vị trí đặt thang, hướng mở cửa, hướng ánh sáng, đường điện…
- Lên bản vẽ mặt bằng – mặt cắt – phối cảnh 3D
- Tối ưu bản vẽ cùng đơn vị thiết kế nội thất nếu có yêu cầu đồng bộ kiến trúc
Mỗi bản vẽ đều được kiểm duyệt kỹ lưỡng bởi kỹ sư cơ khí và kiến trúc sư chuyên trách trước khi đưa vào sản xuất.
2. Kinh nghiệm triển khai thang máy kính tại nhiều loại hình công trình
Faralift không chỉ giới hạn trong phân khúc biệt thự mà còn triển khai đa dạng tại nhà phố, homestay, khách sạn mini, showroom, và thậm chí cả nhà cải tạo. Đặc biệt, với những công trình hạn chế về không gian hoặc không cho phép đào sâu (ví dụ nhà xây sẵn), đội kỹ thuật Faralift luôn có phương án bản vẽ linh hoạt như:
- Không cần hố pit sâu
- Không cần phòng máy riêng
- Vị trí đặt thang ở khu vực ít phá vỡ kết cấu
Nhờ đó, khách hàng có thể tối ưu chi phí thi công mà vẫn đảm bảo chất lượng sử dụng lâu dài.
3. Cam kết rõ ràng về tiến độ và chất lượng lắp đặt
Bản vẽ thang máy kính được chuyển trực tiếp sang đội lắp đặt theo tiêu chuẩn kỹ thuật Faralift. Không có tình trạng bản vẽ một nơi – thi công một nẻo như nhiều đơn vị nhỏ lẻ. Các công đoạn đều có checklist riêng để đảm bảo:
- Lắp đúng theo kích thước và thông số bản vẽ
- Không làm phát sinh chi phí khi thi công
- Không ảnh hưởng đến kết cấu hoặc thẩm mỹ công trình
Đặc biệt, đội kỹ thuật của Faralift luôn sẵn sàng điều chỉnh bản vẽ theo yêu cầu của chủ đầu tư trong quá trình xây dựng – điều này giúp giảm đáng kể thời gian chỉnh sửa và phối hợp với các bên khác.
4. Dịch vụ sau lắp đặt tận tâm
Faralift không chỉ bàn giao bản vẽ – lắp đặt rồi kết thúc. Toàn bộ công trình được bảo hành dài hạn và bảo trì định kỳ, với khả năng cập nhật lại bản vẽ chi tiết sau mỗi đợt nâng cấp hoặc thay thế linh kiện. Điều này cực kỳ cần thiết nếu bạn muốn mở rộng tầng, sửa chữa kết cấu, hoặc nâng cấp thang trong tương lai.

➡️Tìm hiểu thêm về thang máy Faralift
Kết luận
Trong thiết kế thang máy hiện đại, bản vẽ thang máy kính đóng vai trò nền tảng, quyết định đến hiệu quả vận hành, độ an toàn và giá trị thẩm mỹ của toàn bộ công trình. Một bản vẽ tối ưu không chỉ giúp bạn tiết kiệm chi phí thi công mà còn mở ra nhiều lựa chọn về vị trí lắp đặt, phong cách nội thất và cách tận dụng ánh sáng tự nhiên.
Nếu bạn đang tìm kiếm giải pháp thang máy kính phù hợp với không gian sống, đừng chỉ dừng lại ở mẫu mã sản phẩm – hãy bắt đầu bằng một bản vẽ chính xác và có chiều sâu. Đó chính là cách để đảm bảo công trình của bạn không chỉ đẹp mắt, tinh gọn mà còn bền vững theo thời gian.
————————————
CÔNG TY CỔ PHẦN THANG MÁY FARALIFT
📞 Hotline: 0888 335 656
📩 E-mail: info@thangmayfaralift.com
🌐 Website:
https://faraparking.com
📍 Trụ sở chính tại Hà Nội: Tầng 1, Tòa nhà Green Diamond, 93 Láng Hạ, Đống Đa, Hà Nội
📍 VP TP Hồ Chí Minh: 166 Nguyễn Công Trứ, Phường Nguyễn Thái Bình, Quận 1, Thành phố Hồ Chí Minh
📍 VP Đà Nẵng: 142 Nguyễn Thị Minh Khai, Phường Hải Châu, Quận Hải Châu, Thành Phố Đà Nẵng
