Khám phá bản vẽ thang máy không hố pit chi tiết, chuẩn kỹ thuật, giúp thi công nhanh, an toàn và tối ưu không gian.
Bản vẽ thang máy không hố pit – Nền tảng thiết kế cho công trình hiện đại
Trong xu hướng xây dựng hiện đại, bản vẽ thang máy không hố pit đang trở thành tài liệu thiết kế quan trọng giúp gia chủ và kiến trúc sư tối ưu không gian, đặc biệt là với những công trình nhà ở đã hoàn thiện hoặc hạn chế về diện tích. Nếu trước đây, việc lắp đặt thang máy gần như bắt buộc phải đào hố pit để đảm bảo kết cấu, thì ngày nay, công nghệ mới đã cho phép tạo nên những mẫu thang máy hoạt động hiệu quả mà không cần đến phần hố pit truyền thống.
Điểm mấu chốt của loại bản vẽ này nằm ở việc sắp xếp hợp lý vị trí máy kéo, hệ thống ray dẫn hướng, cửa tầng và giải pháp an toàn, tất cả được gói gọn trong một không gian tối giản nhưng vẫn đảm bảo tiêu chuẩn kỹ thuật. Điều này không chỉ giúp tiết kiệm thời gian thi công mà còn giảm thiểu tác động đến cấu trúc hiện hữu của ngôi nhà.
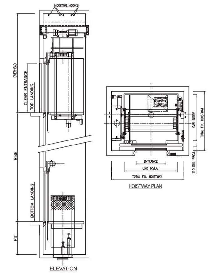
Khi phân tích một bản vẽ thang máy không hố pit, bạn sẽ nhận thấy nó bao gồm nhiều chi tiết kỹ thuật quan trọng: kích thước hố thang, vị trí máy kéo, phương án lắp ray, cơ cấu cửa và hệ thống điện điều khiển. Mỗi chi tiết đều được tính toán cẩn thận để đảm bảo rằng thang máy vận hành êm ái, an toàn và phù hợp với nhu cầu sử dụng.
Điều khiến loại bản vẽ này được nhiều gia đình quan tâm chính là tính linh hoạt. Không cần phải đào sâu nền móng, quá trình thi công sẽ gọn nhẹ hơn, hạn chế tiếng ồn, bụi bặm và đặc biệt là không ảnh hưởng nhiều đến kết cấu nhà. Đây là lợi thế lớn cho những ngôi nhà phố, nhà cải tạo hay các công trình đã hoàn thiện phần nền.
Tuy nhiên, việc lựa chọn và đọc hiểu bản vẽ thang máy không hố pit không hề đơn giản. Gia chủ cần nắm được các thông số cơ bản để phối hợp hiệu quả với kỹ sư thiết kế. Ví dụ: chiều cao tầng dừng, kích thước cửa, vị trí cửa mở, khoảng trống phía dưới sàn cabin, và giải pháp an toàn khi thang dừng tầng cuối. Việc hiểu rõ các yếu tố này giúp bạn tránh được những sai sót khi triển khai thực tế.
Ngoài ra, bản vẽ còn là cơ sở để nhà sản xuất và đơn vị thi công đảm bảo tiến độ, bởi khi mọi thông số đã được thống nhất, quá trình chế tạo và lắp đặt sẽ diễn ra trơn tru hơn. Đây cũng là tài liệu để kiểm tra chất lượng sau khi hoàn thiện, đảm bảo thang máy đáp ứng đúng tiêu chuẩn và nhu cầu ban đầu.
Một yếu tố không thể bỏ qua là thẩm mỹ. Thang máy không hố pit thường được lắp đặt ở những vị trí dễ nhìn thấy trong nhà, do đó bản vẽ cần tính đến sự hài hòa với kiến trúc tổng thể. Màu sắc, chất liệu vách cabin, kiểu cửa và hệ thống chiếu sáng đều có thể được thể hiện ngay từ giai đoạn bản vẽ, giúp gia chủ hình dung chính xác sản phẩm cuối cùng.
Việc sở hữu một bản vẽ thang máy không hố pit chuẩn xác ngay từ đầu sẽ mang lại nhiều lợi ích thiết thực: tiết kiệm thời gian, giảm chi phí phát sinh, đảm bảo an toàn và tối ưu công năng sử dụng. Với những gia đình coi trọng cả tiện nghi và thẩm mỹ, đây chính là bước khởi đầu quan trọng để biến ý tưởng lắp đặt thang máy thành hiện thực.

Các loại bản vẽ thang máy không hố pit phổ biến hiện nay
Khi lựa chọn bản vẽ thang máy không hố pit, việc nắm rõ các loại bản vẽ phổ biến sẽ giúp gia chủ dễ dàng hình dung thiết kế, chuẩn bị không gian và phối hợp với kiến trúc sư để đảm bảo tính thẩm mỹ cũng như an toàn. Mỗi loại bản vẽ sẽ thể hiện một phương án thi công khác nhau, phù hợp với diện tích, phong cách kiến trúc và nhu cầu sử dụng của từng gia đình.
Trước hết, cần hiểu rằng bản vẽ thang máy không hố pit không chỉ đơn thuần là bản mô tả kích thước. Đây là tài liệu kỹ thuật thể hiện chi tiết cấu tạo giếng thang, vị trí cửa, hệ thống dẫn động, bố trí cabin, cửa tầng, cũng như các chi tiết cơ khí và điện tử liên quan. Nhờ vậy, cả đội ngũ kỹ thuật và chủ nhà đều có cái nhìn đồng bộ, tránh sai sót khi thi công.
1. Bản vẽ thang máy thủy lực không hố pit
Loại bản vẽ này thường áp dụng cho các công trình nhà phố hoặc biệt thự có chiều cao từ 2–4 tầng. Bản vẽ thể hiện rõ cấu trúc pit giả (khoảng 5–10 cm), vị trí xi-lanh thủy lực đặt bên hông hoặc phía sau cabin, cùng sơ đồ đường dẫn dầu. Kiểu bản vẽ này giúp kỹ thuật viên xác định chính xác điểm neo cabin và khoảng trống cần chừa để lắp đặt máy bơm thủy lực, đảm bảo thang vận hành êm và an toàn.
2. Bản vẽ thang máy trục vít không hố pit
Đây là một trong những lựa chọn phổ biến cho gia đình bởi thiết kế gọn gàng, không yêu cầu hố pit và không cần phòng máy riêng. Bản vẽ thang máy không hố pit dạng này sẽ mô tả chi tiết vị trí đặt động cơ trục vít bên trên hoặc bên cạnh cabin, cùng với hệ thống ray dẫn hướng và cửa tầng. Loại bản vẽ này phù hợp với các công trình có không gian hạn chế, nhưng vẫn cần sự ổn định và độ bền cao.
3. Bản vẽ thang máy kéo cáp cải tiến không hố pit
Khác với thang máy kéo cáp truyền thống, bản vẽ của loại không hố pit sẽ mô tả giải pháp lắp đặt bộ giảm chấn ngay dưới sàn tầng thấp nhất thay vì trong hố pit. Cabin thường được thiết kế với sàn dày hơn để bù cho thiếu hụt chiều sâu pit. Loại bản vẽ này cũng cần thể hiện rõ hệ thống puly, đối trọng và khoảng cách an toàn giữa các bộ phận.
4. Bản vẽ phối cảnh 3D kết hợp thông số kỹ thuật
Ngoài các bản vẽ kỹ thuật 2D, nhiều gia đình hiện nay ưa chuộng bản vẽ phối cảnh 3D vì có thể hình dung trực quan vị trí và hình dạng thang máy sau khi lắp đặt. Bản vẽ thang máy không hố pit dạng này thường kèm thông số kỹ thuật ngay trên hình ảnh, giúp quá trình trao đổi giữa kiến trúc sư, kỹ sư và chủ nhà diễn ra nhanh chóng, hạn chế nhầm lẫn.
5. Bản vẽ cải tạo từ công trình cũ
Với những ngôi nhà đã xây dựng từ trước, bản vẽ này được thiết kế dựa trên hiện trạng, nhằm tận dụng tối đa khoảng trống có sẵn. Bản vẽ thể hiện rõ vị trí cắt sàn, gia cố kết cấu và các điều chỉnh cần thiết để thang máy hoạt động an toàn mà không ảnh hưởng tới kiến trúc tổng thể.
Tóm lại, mỗi loại bản vẽ thang máy không hố pit đều có đặc điểm và ưu điểm riêng. Việc lựa chọn loại bản vẽ phù hợp không chỉ giúp quá trình lắp đặt diễn ra thuận lợi mà còn đảm bảo thang máy hòa hợp với không gian sống. Đặc biệt, khi làm việc với đơn vị cung cấp, gia chủ nên yêu cầu xem trước bản vẽ chi tiết để kiểm tra mọi yếu tố từ thẩm mỹ, kỹ thuật đến độ an toàn.

Các yêu cầu kỹ thuật trong bản vẽ thang máy không hố pit để đảm bảo an toàn và vận hành ổn định
Khi triển khai một bản vẽ thang máy không hố pit, yếu tố kỹ thuật đóng vai trò quyết định đến khả năng vận hành, tuổi thọ và mức độ an toàn của thiết bị. Đây không chỉ là bản hướng dẫn cho thợ thi công, mà còn là “bộ khung” để đảm bảo mọi hạng mục được xây dựng đúng chuẩn, không xảy ra sai lệch gây rủi ro trong quá trình sử dụng.
Đầu tiên, kích thước hố thang phải được thể hiện rõ ràng trong bản vẽ. Vì không có hố pit, phần đáy hố sẽ gần như ngang bằng sàn tầng thấp nhất, nên cần tính toán chính xác khoảng không gian cho bộ giảm chấn và hệ thống cảm biến dừng tầng. Kích thước sai lệch chỉ vài centimet cũng có thể dẫn tới việc cabin không hoạt động trơn tru hoặc gây va chạm.
Tiếp theo, kết cấu ray dẫn hướng là hạng mục quan trọng cần được chỉ rõ trong bản vẽ thang máy không hố pit. Ray dẫn hướng phải được lắp đặt trên bề mặt tường hoặc khung thép đủ cứng, đảm bảo không bị rung lắc khi cabin di chuyển. Độ sai lệch cho phép thường không vượt quá 1mm trên mỗi mét chiều cao.
Hệ thống cửa tầng cũng là chi tiết cần được chú trọng. Do không có hố pit, cửa tầng của thang máy loại này thường đặt sát nền sàn. Điều này đòi hỏi bản vẽ phải thể hiện rõ cao độ cửa, vị trí cảm biến an toàn và cơ chế đóng mở để đảm bảo người sử dụng không gặp vướng víu khi ra vào cabin.
Ngoài ra, bản vẽ thang máy không hố pit cần chỉ định vị trí chính xác của máy kéo hoặc mô-tơ. Trong các thiết kế hiện đại, máy kéo thường được đặt ở đỉnh giếng thang hoặc tích hợp ngay trong cabin. Vị trí này cần được cân nhắc để vừa đảm bảo thuận tiện bảo trì, vừa tối ưu không gian.
Hệ thống điện và điều khiển cũng phải được thể hiện chi tiết. Đường dây nguồn, hệ thống cảm biến, tủ điều khiển và bảng hiển thị phải được bố trí hợp lý, tránh chồng chéo và đảm bảo khoảng cách an toàn theo tiêu chuẩn. Điều này không chỉ ảnh hưởng đến hiệu suất vận hành mà còn giúp thang máy dễ bảo trì hơn trong tương lai.
Cuối cùng, yếu tố tiêu chuẩn an toàn là phần không thể thiếu trong bản vẽ thang máy không hố pit. Từ tải trọng tối đa, tốc độ vận hành, cho đến các tính năng an toàn như bộ hãm cơ, hệ thống chống vượt tốc hay UPS dự phòng khi mất điện – tất cả cần được tính toán ngay từ giai đoạn thiết kế.
➡️ Hãy tham khảo bài viết để hiểu thêm về kích thước thang máy không hố pit: Kích Thước Thang Máy Không Hố Pit – Tiêu Chuẩn Lắp Đặt Chính Xác Cho Mọi Nhà

Các lỗi thường gặp khi đọc bản vẽ thang máy không hố pit và cách khắc phục
Việc đọc và hiểu bản vẽ thang máy không hố pit tưởng chừng đơn giản, nhưng thực tế lại tiềm ẩn nhiều rủi ro nếu người đọc thiếu kinh nghiệm hoặc bỏ qua các chi tiết kỹ thuật. Những lỗi nhỏ trong giai đoạn xem bản vẽ có thể dẫn đến thi công sai, ảnh hưởng đến thẩm mỹ, an toàn và tuổi thọ của thang máy.
Lỗi 1: Bỏ sót thông số kỹ thuật quan trọng
Một trong những lỗi phổ biến là không chú ý đầy đủ đến các thông số kích thước trong bản vẽ thang máy không hố pit. Ví dụ, chỉ cần sai lệch vài centimet ở chiều cao cửa, chiều sâu giếng thang hay kích thước cabin cũng có thể khiến việc lắp đặt gặp khó khăn. Để khắc phục, cần rà soát kỹ tất cả số liệu trên bản vẽ, so sánh với thực tế công trình và có sự xác nhận từ kỹ sư phụ trách.
Lỗi 2: Không đọc ký hiệu và chú thích bản vẽ
Mỗi bản vẽ thang máy không hố pit đều có hệ thống ký hiệu riêng, biểu thị vị trí cửa, hướng mở, điểm neo, đường điện, vị trí bảng điều khiển… Nếu bỏ qua các chú thích này, việc thi công dễ sai lệch so với thiết kế ban đầu. Giải pháp là trước khi bắt đầu đọc bản vẽ, cần làm quen với bộ ký hiệu tiêu chuẩn và ghi chú giải nghĩa rõ ràng.
Lỗi 3: Hiểu sai về không gian yêu cầu
Nhiều người chỉ tập trung vào kích thước cabin mà quên tính toán khoảng trống xung quanh cho hệ thống ray dẫn hướng, máy kéo hoặc tủ điện. Điều này đặc biệt quan trọng với thang máy không hố pit, nơi mọi không gian đều cần được tối ưu. Cách khắc phục là luôn xem tổng thể bản vẽ, không chỉ một phần, và trao đổi trực tiếp với nhà cung cấp để xác minh yêu cầu tối thiểu.
Lỗi 4: Không đối chiếu bản vẽ với thực tế
Một số công trình được thiết kế từ bản vẽ lý tưởng nhưng khi thi công lại gặp chướng ngại như dầm, cột, hay hệ thống điện nước hiện hữu. Nếu không kiểm tra thực tế trước khi triển khai, bản vẽ có thể không áp dụng được. Giải pháp hiệu quả là tiến hành khảo sát hiện trường nhiều lần trước khi chốt bản vẽ thang máy không hố pit chính thức.
Lỗi 5: Không tính đến yếu tố bảo trì và nâng cấp
Một lỗi khác là chỉ chú ý đến việc lắp đặt ban đầu mà bỏ qua không gian cần thiết cho bảo trì sau này. Với thang máy không hố pit, việc bảo trì đòi hỏi các điểm tiếp cận thuận tiện, nếu không sẽ gây khó khăn hoặc tốn kém khi cần sửa chữa. Cách khắc phục là tham khảo ý kiến kỹ sư bảo trì ngay từ giai đoạn thiết kế bản vẽ.
Giải pháp tổng thể để hạn chế sai sót
Để hạn chế tối đa các lỗi trên, người đọc bản vẽ thang máy không hố pit nên:
- Làm việc trực tiếp với đội ngũ kỹ thuật có kinh nghiệm.
- Kiểm tra chéo giữa bản vẽ, yêu cầu kỹ thuật và hiện trạng công trình.
- Sử dụng bản vẽ 3D hoặc mô hình mô phỏng để dễ hình dung.

Tư vấn lựa chọn bản vẽ thang máy không hố pit phù hợp với từng loại nhà ở
Việc lựa chọn bản vẽ thang máy không hố pit không chỉ phụ thuộc vào thiết kế kỹ thuật mà còn liên quan chặt chẽ đến kiểu kiến trúc của ngôi nhà, nhu cầu sử dụng và yếu tố an toàn. Nếu không xem xét kỹ, bạn có thể gặp tình trạng thang máy lắp xong nhưng không tối ưu về diện tích, thẩm mỹ hoặc gây khó khăn khi vận hành lâu dài.
1. Nhà phố hẹp chiều ngang – ưu tiên bản vẽ tiết kiệm diện tích
Với những ngôi nhà phố có chiều ngang dưới 4 mét, bản vẽ thang máy không hố pit cần được thiết kế dạng vuông gọn hoặc chữ nhật đứng, tối ưu diện tích sàn. Cabin thường có kích thước nhỏ gọn, vừa đủ cho 3–4 người sử dụng. Hệ thống cửa mở tự động dạng trượt về một phía sẽ giúp tiết kiệm không gian phía trước, tránh vướng khi di chuyển.
Trong trường hợp này, giải pháp đặt thang ở góc cầu thang hoặc cạnh giếng trời sẽ giúp giảm thiểu tác động đến bố cục nhà. Việc không cần đào hố pit cũng giúp tránh ảnh hưởng đến nền móng, đặc biệt quan trọng với nhà cải tạo hoặc nhà liền kề.
2. Nhà biệt thự – chú trọng thẩm mỹ và sự đồng bộ
Biệt thự thường có diện tích rộng, trần cao, nên bản vẽ thang máy không hố pit có thể được tùy chỉnh linh hoạt về kích thước và phong cách. Thang có thể dùng cabin kính toàn phần để tạo điểm nhấn hoặc kết hợp gỗ – inox nhằm hòa hợp với nội thất sang trọng.
Trong bản vẽ, cần bố trí thang ở vị trí trung tâm hoặc gần không gian sinh hoạt chính để thuận tiện di chuyển. Hệ thống cửa kính trong suốt sẽ giúp mở rộng tầm nhìn, tạo cảm giác thoáng đãng và tăng giá trị thẩm mỹ cho căn biệt thự.
3. Cải tạo nhà cũ – yêu cầu bản vẽ linh hoạt và an toàn
Khi cải tạo nhà, nhiều chủ nhà lo lắng việc lắp thang máy sẽ ảnh hưởng đến kết cấu hoặc buộc phải hy sinh không gian sinh hoạt. Với bản vẽ thang máy không hố pit, kỹ sư sẽ thiết kế hệ khung thép hoặc giếng thang lắp ghép để thi công nhanh, ít đục phá.
Kích thước cabin và cửa cần điều chỉnh phù hợp với thực tế công trình. Trong bản vẽ cũng nên thể hiện rõ các điểm gia cố sàn và tường để đảm bảo an toàn khi thang vận hành lâu dài.
4. Nhà có người cao tuổi hoặc trẻ nhỏ – ưu tiên an toàn và tiện dụng
Nếu trong nhà có người già hoặc trẻ nhỏ, bản vẽ thang máy không hố pit nên thiết kế cửa mở tự động êm ái, cabin có tay vịn và gương soi để dễ quan sát. Nút bấm điều khiển cần đặt ở độ cao phù hợp, bảng hiển thị rõ ràng.
Ngoài ra, bản vẽ cần thể hiện các vị trí cảm biến an toàn ở cửa và sàn cabin, đảm bảo thang dừng hoạt động ngay khi phát hiện vật cản, giảm nguy cơ tai nạn.
5. Tư vấn chọn bản vẽ đúng ngay từ đầu
Việc chọn bản vẽ thang máy không hố pit chuẩn ngay từ đầu giúp bạn:
Tiết kiệm thời gian thi công vì mọi chi tiết đã được tính toán trước.
Giảm chi phí sửa đổi do không phải thay đổi cấu trúc sau này.
Đảm bảo an toàn khi vận hành vì bản vẽ đã tính đến các yếu tố kỹ thuật, tải trọng và bố trí hợp lý.
Chủ nhà nên làm việc trực tiếp với đơn vị thiết kế – lắp đặt để bản vẽ vừa đáp ứng nhu cầu sử dụng, vừa phù hợp với kiến trúc nhà. Nếu đang cân nhắc lắp đặt thang kính, bạn có thể tham khảo thêm giải pháp thang máy bằng kính để có cái nhìn toàn diện hơn.

Kết luận: Ý nghĩa của bản vẽ thang máy không hố pit trong thực tế sử dụng
Việc sở hữu một bản vẽ thang máy không hố pit không chỉ là bước khởi đầu trong quá trình lắp đặt mà còn đóng vai trò quan trọng trong suốt vòng đời vận hành của công trình. Thông qua bản vẽ, chủ nhà, kiến trúc sư và đơn vị thi công có thể phối hợp nhịp nhàng, tránh sai sót, tiết kiệm thời gian và chi phí. Đây là nền tảng đảm bảo hệ thống thang máy vận hành ổn định, an toàn và bền bỉ trong nhiều năm liền.
Trong thực tế, không ít khách hàng gặp phải tình trạng chậm tiến độ hoặc phải điều chỉnh thiết kế nhiều lần vì không có bản vẽ thang máy không hố pit ngay từ đầu. Việc này vừa phát sinh chi phí, vừa ảnh hưởng đến tiến độ hoàn thiện nội thất. Ngược lại, khi có bản vẽ chi tiết, mọi thông số kỹ thuật đều được thể hiện rõ ràng: từ kích thước hố thang, vị trí cửa, hướng mở, đến các yêu cầu kỹ thuật về điện và thông gió. Điều này giúp toàn bộ quá trình thi công diễn ra mạch lạc và đúng tiêu chuẩn.
Một điểm cộng lớn của bản vẽ là giúp chủ nhà hình dung chính xác sản phẩm hoàn thiện, đảm bảo thiết kế thang máy hòa hợp với kiến trúc tổng thể. Đặc biệt, với các dòng thang máy không hố pit, việc tính toán kỹ lưỡng khoảng cách sàn, chiều cao tầng và vị trí dầm chịu lực sẽ quyết định trực tiếp đến sự êm ái và an toàn khi vận hành. Đây cũng là lý do Faralift luôn ưu tiên khâu thiết kế bản vẽ trước khi sản xuất và lắp đặt.
Ngoài yếu tố kỹ thuật, bản vẽ còn đóng vai trò như một tài liệu tham chiếu quan trọng khi cần bảo trì, sửa chữa hoặc nâng cấp thang máy trong tương lai. Nhờ có bản vẽ gốc, kỹ thuật viên có thể xác định nhanh cấu tạo và thông số máy, từ đó xử lý sự cố nhanh hơn, giảm thiểu thời gian gián đoạn hoạt động. Điều này mang lại lợi ích khách hàng rõ rệt: tiết kiệm thời gian, giảm chi phí và đảm bảo an toàn tối đa.
Với khách hàng đang tìm kiếm giải pháp thang máy phù hợp cho ngôi nhà, đặc biệt là loại không hố pit, việc yêu cầu và lưu giữ bản vẽ thang máy không hố pit là bước không thể bỏ qua. Đây không chỉ là bản kế hoạch kỹ thuật, mà còn là “bản đồ” dẫn dắt quá trình thi công, bảo trì và nâng cấp trong suốt thời gian sử dụng.
Faralift hiểu rõ mỗi công trình là duy nhất, vì vậy chúng tôi luôn thiết kế bản vẽ riêng cho từng dự án, đảm bảo vừa chuẩn kỹ thuật, vừa tối ưu thẩm mỹ. Việc này giúp khách hàng yên tâm rằng sản phẩm cuối cùng sẽ không chỉ đáp ứng nhu cầu di chuyển thuận tiện, an toàn, mà còn nâng tầm giá trị không gian sống.
➡️ Tìm hiểu chi tiết thêm về thang máy Faralift

————————————
CÔNG TY CỔ PHẦN THANG MÁY FARALIFT
📞 Hotline: 0888 335 656
📩 E-mail: info@thangmayfaralift.com
🌐 Website:
https://thangmayfaralift.com
https://faraparking.com
📍 Trụ sở chính tại Hà Nội: Tầng 1, Tòa nhà Green Diamond, 93 Láng Hạ, Đống Đa, Hà Nội
📍 VP TP Hồ Chí Minh: 166 Nguyễn Công Trứ, Phường Nguyễn Thái Bình, Quận 1, Thành phố Hồ Chí Minh
📍 VP Đà Nẵng: 142 Nguyễn Thị Minh Khai, Phường Hải Châu, Quận Hải Châu, Thành Phố Đà Nẵng
