Tìm hiểu chi tiết cấu tạo thang máy không hố pit, nguyên lý hoạt động và ứng dụng thực tế giúp tối ưu không gian và đảm bảo an toàn vận hành.
Cấu tạo thang máy không hố pit – Giải pháp linh hoạt cho mọi không gian
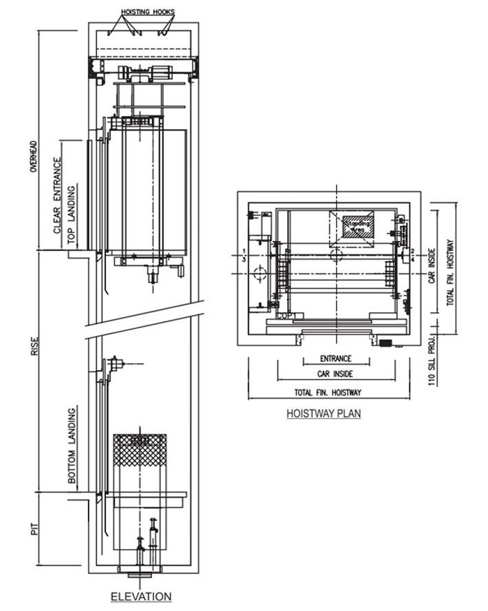
Trong những năm gần đây, cấu tạo thang máy không hố pit đang trở thành một chủ đề được nhiều gia chủ quan tâm, đặc biệt là những người đang tìm kiếm giải pháp lắp đặt thang máy trong không gian hạn chế. Không giống như thang máy truyền thống yêu cầu một hố pit sâu để đặt bộ phận giảm chấn và hệ thống vận hành, loại thang máy này được thiết kế tối giản phần đào sâu nền, giúp thi công nhanh chóng, ít ảnh hưởng đến kết cấu sẵn có của công trình.
Điểm đặc biệt của cấu tạo thang máy không hố pit là toàn bộ thiết kế đã được tối ưu để tích hợp gọn gàng các bộ phận vận hành vào một không gian hẹp hơn. Thay vì cần hố pit sâu 600–1500 mm, loại thang máy này chỉ cần khoảng 50–150 mm hoặc thậm chí có thể lắp đặt trực tiếp trên nền nhà. Điều này mở ra cơ hội lắp đặt thang máy ngay cả ở những căn nhà phố, biệt thự cải tạo, hay công trình có tầng hầm đã hoàn thiện.
Một trong những yếu tố khiến nhiều gia đình lựa chọn loại thang máy này chính là lợi ích về thời gian và chi phí xây dựng. Khi không phải đào hố pit sâu, gia chủ tiết kiệm được đáng kể chi phí phá dỡ, chống thấm và gia cố móng. Đồng thời, quá trình lắp đặt cũng diễn ra nhanh hơn, giảm thiểu tiếng ồn và bụi bẩn, giúp gia đình vẫn có thể sinh hoạt bình thường trong khi công trình thi công.
Về mặt kỹ thuật, cấu tạo thang máy không hố pit vẫn đảm bảo đầy đủ các thành phần quan trọng của một hệ thống thang máy tiêu chuẩn, bao gồm: cabin, hệ thống dẫn hướng, động cơ, bộ điều khiển, và hệ thống an toàn. Tuy nhiên, các bộ phận này được sắp xếp lại sao cho phù hợp với khoảng trống giới hạn. Ví dụ, bộ giảm chấn sẽ được thiết kế dạng dẹt hoặc bố trí ở vị trí khác thay vì đặt sâu dưới hố pit.
Bên cạnh đó, nhiều mẫu thang máy không hố pit hiện nay còn áp dụng công nghệ thủy lực hoặc cáp kéo kết hợp đối trọng, tùy vào nhu cầu sử dụng và điều kiện kỹ thuật của công trình. Với công nghệ thủy lực, toàn bộ hệ thống vận hành được bố trí linh hoạt, giúp giảm rung lắc và tăng độ êm khi di chuyển. Trong khi đó, hệ thống cáp kéo tiết kiệm điện năng và thích hợp cho những công trình cao từ 3–5 tầng.
Một ưu điểm khác khiến loại thang máy này được ưa chuộng là yếu tố thẩm mỹ. Do không yêu cầu hố pit sâu, thiết kế cửa tầng và khu vực sàn thang máy có thể đồng bộ với nội thất, tạo cảm giác liền mạch và sang trọng. Đặc biệt, khi kết hợp với vách kính hoặc chất liệu cao cấp, thang máy không chỉ là phương tiện di chuyển mà còn trở thành điểm nhấn kiến trúc.
Tuy vậy, để lựa chọn và lắp đặt thành công, gia chủ cần hiểu rõ cấu tạo thang máy không hố pit cũng như các tiêu chuẩn an toàn liên quan. Việc này giúp đảm bảo thang máy hoạt động ổn định lâu dài, đồng thời tối ưu hiệu suất và tuổi thọ thiết bị. Các yếu tố như chiều cao tầng, tải trọng mong muốn, phương án bố trí phòng máy hoặc máy kéo… đều cần được xem xét ngay từ khâu thiết kế bản vẽ.
Tóm lại, cấu tạo thang máy không hố pit là giải pháp tối ưu cho những công trình hạn chế về không gian hoặc không muốn can thiệp quá sâu vào nền móng. Với ưu điểm linh hoạt, tiết kiệm và thẩm mỹ, loại thang máy này hứa hẹn sẽ tiếp tục trở thành xu hướng trong xây dựng và cải tạo nhà ở tại Việt Nam. Trong các phần tiếp theo của bài viết, chúng ta sẽ cùng tìm hiểu chi tiết hơn về nguyên lý hoạt động, vật liệu cấu thành và những lưu ý quan trọng khi lựa chọn để đảm bảo hiệu quả sử dụng lâu dài.
➡️ Tìm hiểu thêm về kích thước thang máy không hố pit trong bài viết: Kích Thước Thang Máy Không Hố Pit – Tiêu Chuẩn Lắp Đặt Chính Xác Cho Mọi Nhà

Các thành phần chính trong cấu tạo thang máy không hố pit
Khi tìm hiểu về cấu tạo thang máy không hố pit, khách hàng thường quan tâm đến những bộ phận quan trọng quyết định chất lượng, an toàn và độ bền của thiết bị. Mặc dù loại thang máy này không có phần hố pit truyền thống, nhưng vẫn đảm bảo đầy đủ các cấu trúc cần thiết để vận hành trơn tru, êm ái và an toàn cho người dùng. Việc nắm rõ từng thành phần sẽ giúp gia chủ dễ dàng lựa chọn mẫu thang phù hợp cũng như hình dung rõ hơn về quy trình lắp đặt.
1. Cabin thang máy
Cabin là nơi người sử dụng trực tiếp di chuyển, đóng vai trò là “trái tim” của toàn hệ thống. Cabin trong cấu tạo thang máy không hố pit thường được thiết kế nhỏ gọn, nhẹ nhưng chắc chắn, với vật liệu như thép sơn tĩnh điện hoặc inox gương, kết hợp kính cường lực để tạo cảm giác rộng rãi. Một số mẫu cao cấp sử dụng kính toàn phần nhằm tăng tính thẩm mỹ và giúp ánh sáng tự nhiên tràn vào không gian.
2. Khung dẫn hướng
Do không có hố pit để chứa hệ thống giảm chấn, khung dẫn hướng của loại thang này được thiết kế đặc biệt để đảm bảo độ vững chắc khi cabin di chuyển. Khung thường làm bằng thép chịu lực, cố định chắc chắn vào tường hoặc kết cấu nhà, giúp cabin vận hành ổn định, giảm rung lắc và tiếng ồn.
3. Hệ thống truyền động
Với cấu tạo thang máy không hố pit, hệ thống truyền động thường là loại kéo cáp kết hợp máy kéo đặt phía trên (overhead) hoặc loại thủy lực với xi lanh đặt ngang/dọc. Mỗi loại truyền động có ưu điểm riêng: máy kéo cáp cho độ êm mượt và tiết kiệm điện, trong khi hệ thống thủy lực lại cho khả năng lắp đặt linh hoạt ở nhiều vị trí, kể cả nhà cải tạo.
4. Cửa thang máy
Cửa thang máy trong loại không hố pit thường được bố trí ngang bằng với nền sàn, đảm bảo an toàn khi di chuyển, đặc biệt cho người già và trẻ nhỏ. Có thể lựa chọn cửa mở tự động hoặc cửa mở tay, tùy thuộc vào nhu cầu và ngân sách. Ngoài ra, các mẫu cửa còn tích hợp cảm biến chống kẹt, đảm bảo an toàn tuyệt đối khi sử dụng.
5. Bộ điều khiển trung tâm
Bộ điều khiển là “bộ não” của thang máy, chịu trách nhiệm xử lý tín hiệu và điều khiển mọi hoạt động. Trong cấu tạo thang máy không hố pit, hệ thống điều khiển thường tích hợp công nghệ hiện đại, cho phép vận hành mượt mà, tiết kiệm điện năng và hỗ trợ các chế độ an toàn như dừng khẩn cấp, cứu hộ tự động khi mất điện.
6. Hệ thống an toàn
Do không có hố pit, phần hệ thống an toàn được thiết kế đặc biệt để vẫn đảm bảo tiêu chuẩn khắt khe. Bao gồm cảm biến quá tải, thiết bị giới hạn tốc độ, hệ thống phanh bảo vệ, đệm giảm chấn đặc biệt hoặc giải pháp thay thế phù hợp. Những yếu tố này giúp khách hàng yên tâm khi sử dụng hàng ngày.
Việc hiểu rõ các thành phần trong cấu tạo thang máy không hố pit không chỉ giúp gia chủ lựa chọn mẫu phù hợp mà còn biết cách bảo dưỡng đúng cách, kéo dài tuổi thọ thiết bị và đảm bảo an toàn tuyệt đối.

Các bộ phận chính trong cấu tạo thang máy không hố pit
Thang máy không hố pit ngày càng phổ biến nhờ thiết kế tối giản và khả năng lắp đặt trong nhiều không gian hạn chế. Để hiểu rõ hơn, chúng ta cần phân tích cấu tạo thang máy không hố pit thông qua từng bộ phận chính, bởi đây là yếu tố quyết định đến hiệu suất, độ bền và độ an toàn của thiết bị. Mỗi thành phần đều có vai trò riêng, nhưng chúng phối hợp nhịp nhàng để tạo nên một hệ thống vận hành trơn tru.
Trước hết, hệ thống khung cabin là nơi người dùng trực tiếp đứng hoặc di chuyển. Cabin của thang máy không hố pit thường được gia công từ thép không gỉ hoặc hợp kim nhôm cao cấp, giúp đảm bảo độ chắc chắn và tính thẩm mỹ. Do không có hố pit, khung cabin được thiết kế nhẹ hơn, đồng thời sử dụng cơ chế đỡ và dẫn hướng đặc biệt để đảm bảo an toàn khi di chuyển. Nội thất cabin có thể tùy chỉnh từ phong cách hiện đại, cổ điển đến tối giản, phù hợp với kiến trúc tổng thể của ngôi nhà.
Tiếp theo, hệ thống dẫn hướng đóng vai trò giữ cabin di chuyển đúng quỹ đạo. Thang máy không hố pit vẫn sử dụng ray dẫn hướng, nhưng chúng được cố định trực tiếp vào tường hoặc khung kết cấu, thay vì bắt từ đáy hố pit. Điều này đòi hỏi kỹ thuật lắp đặt chính xác để đảm bảo cabin không rung lắc khi vận hành. Chất liệu ray dẫn hướng thường là thép đặc, chịu lực tốt và ít biến dạng.
Một thành phần không thể thiếu trong cấu tạo thang máy không hố pit là cơ cấu nâng. Tùy theo loại thang, cơ cấu này có thể là hệ thống cáp kéo kết hợp đối trọng, hoặc công nghệ trục vít – đai ốc (screw drive). Với thang máy không hố pit, đối trọng thường được thiết kế gọn và treo ở bên hông, giúp tiết kiệm không gian. Đối với công nghệ trục vít, cơ cấu nâng được đặt thẳng đứng, kết nối trực tiếp cabin, loại bỏ hoàn toàn nhu cầu sử dụng đối trọng.
Hệ thống cửa cũng được tinh chỉnh để phù hợp với đặc thù không có hố pit. Thay vì cửa mở tự động hoàn toàn với cơ chế đáy, nhiều mẫu thang máy không hố pit sử dụng cửa mở tay hoặc cửa trượt ngang gắn trên thân cabin. Điều này giúp giảm chiều sâu yêu cầu của sàn, đồng thời tối ưu hóa độ an toàn cho người sử dụng, đặc biệt là người già và trẻ nhỏ.
Đóng vai trò quan trọng trong an toàn vận hành, hệ thống thắng cơ và cảm biến an toàn là bộ phận bắt buộc phải có. Thắng cơ được gắn ở phần ray dẫn hướng, sẵn sàng kích hoạt khi cabin vượt tốc hoặc gặp sự cố. Cảm biến an toàn bao gồm cảm biến cửa, cảm biến tải trọng và cảm biến dừng tầng, đảm bảo cabin vận hành đúng tốc độ, đúng vị trí.
Một điểm khác biệt đáng chú ý của cấu tạo thang máy không hố pit là hệ thống giảm chấn. Thay vì giảm chấn thủy lực đặt ở đáy hố pit như thang máy truyền thống, loại này sử dụng giảm chấn lò xo hoặc cao su bố trí ngay tại chân ray dẫn hướng hoặc đáy cabin. Giải pháp này vừa đảm bảo an toàn, vừa tiết kiệm diện tích lắp đặt.
Ngoài ra, bộ điều khiển trung tâm (controller) cũng đóng vai trò “bộ não” của thang máy. Với thang máy không hố pit, bộ điều khiển thường được tích hợp gọn trong tủ điện nhỏ gắn gần cửa tầng hoặc bên trên cabin, thuận tiện cho việc bảo trì và sửa chữa.
Khi tất cả các bộ phận này được kết hợp đúng tiêu chuẩn kỹ thuật, cấu tạo thang máy không hố pit sẽ đảm bảo mang lại trải nghiệm vận hành êm ái, tiết kiệm diện tích và phù hợp cho nhiều loại hình công trình – từ nhà phố, biệt thự đến công trình cải tạo.

Cấu tạo cabin và hệ thống cửa của thang máy không hố pit
Cabin và hệ thống cửa là hai thành phần quan trọng trong cấu tạo thang máy không hố pit, quyết định trải nghiệm sử dụng và độ an toàn của người dùng. Chúng không chỉ đảm bảo tính vận hành êm ái mà còn đóng vai trò tạo nên tính thẩm mỹ tổng thể cho thiết bị.
Với đặc thù không sử dụng hố pit, cabin và cửa được thiết kế để tối ưu không gian và giảm thiểu các yêu cầu kỹ thuật phức tạp. Thông thường, cabin có trọng lượng nhẹ hơn thang máy truyền thống, sử dụng khung thép hoặc hợp kim nhôm, kết hợp với vách kính hoặc inox để vừa đảm bảo độ bền vừa tạo cảm giác thoáng đãng.
Cửa thang máy có thể là cửa mở tự động hoặc cửa mở tay, tùy theo nhu cầu và thiết kế ngôi nhà. Với loại không hố pit, cửa mở tự động dạng trượt ngang vẫn được ưa chuộng nhờ sự tiện lợi, an toàn và hiện đại. Hệ thống cảm biến chống kẹt cửa được tích hợp nhằm bảo vệ người dùng, đặc biệt là trẻ nhỏ và người cao tuổi.
1. Thiết kế cabin phù hợp không gian hạn chế
Cabin trong cấu tạo thang máy không hố pit thường được thiết kế nhỏ gọn, với kích thước tối ưu cho từ 2–4 người sử dụng. Việc tối ưu khung và sàn cabin giúp giảm tải trọng, đồng thời vẫn đảm bảo khả năng chịu lực và độ bền lâu dài. Nội thất cabin có thể tùy chỉnh với các vật liệu cao cấp như inox gương, kính cường lực hoặc gỗ veneer để phù hợp phong cách nội thất của gia chủ.
Ngoài yếu tố thẩm mỹ, cabin được trang bị hệ thống chiếu sáng LED tiết kiệm điện, bảng điều khiển cảm ứng hoặc nút nhấn cơ học bền bỉ, dễ thao tác. Đây là những chi tiết tưởng nhỏ nhưng lại giúp nâng cao trải nghiệm sử dụng hàng ngày.
2. Cấu trúc sàn và hệ thống cân bằng
Không có hố pit đồng nghĩa với việc sàn cabin sẽ gần sát mặt sàn tầng trệt. Vì vậy, trong cấu tạo thang máy không hố pit, phần sàn cabin được gia cố đặc biệt để chịu lực tốt và có bề mặt chống trượt, đảm bảo an toàn khi ra vào. Một số mẫu còn tích hợp cơ chế cân bằng tự động giúp cabin dừng chính xác, tránh tình trạng lệch sàn gây vấp ngã.
3. Hệ thống cửa an toàn và vận hành êm ái
Cửa là bộ phận trực tiếp bảo vệ người dùng khi thang hoạt động. Cửa mở tự động được điều khiển bởi động cơ điện và bộ truyền động, hoạt động êm và ít rung lắc. Cảm biến an toàn sẽ lập tức mở cửa khi phát hiện vật cản, giảm nguy cơ kẹp người hoặc đồ vật.
Với những không gian đặc biệt, cấu tạo thang máy không hố pit có thể áp dụng cửa mở tay dạng bản lề hoặc gấp, giúp tiết kiệm diện tích và đơn giản hóa hệ thống cơ khí.
4. Tích hợp công nghệ mới
Cabin và cửa của thang máy hiện đại không chỉ đáp ứng nhu cầu cơ bản mà còn tích hợp nhiều công nghệ mới. Ví dụ, hệ thống điều khiển thông minh giúp cửa đóng/mở mềm mại, giảm tiếng ồn và tiết kiệm điện năng. Một số mẫu còn có màn hình LCD hiển thị thông tin tầng, nhiệt độ hoặc thông báo kỹ thuật.
Những cải tiến này giúp cấu tạo thang máy không hố pit trở nên tiện nghi hơn, đáp ứng nhu cầu sống hiện đại của gia đình Việt.

Cấu tạo sàn thang và cơ chế vận hành an toàn của thang máy không hố pit
Sàn thang là một trong những bộ phận quan trọng nhất của cấu tạo thang máy không hố pit, đóng vai trò chịu tải trực tiếp toàn bộ người và hàng hóa khi di chuyển. Trong thiết kế đặc thù của dòng thang này, sàn thường được chế tạo từ thép chịu lực hoặc hợp kim nhôm cường độ cao, đảm bảo vừa nhẹ vừa bền. Bề mặt sàn có thể phủ vật liệu chống trượt như cao su công nghiệp, đá nhân tạo hoặc gỗ công nghiệp phủ melamine, mang lại tính thẩm mỹ và an toàn khi sử dụng.
Điểm khác biệt lớn so với thang máy truyền thống là sàn của thang máy không hố pit thường được đặt gần sát mặt nền hiện hữu, chỉ cần một khoảng trũng từ 5–10 cm (hoặc thậm chí lắp nổi hoàn toàn). Điều này giúp việc cải tạo, lắp đặt trong nhà phố hoặc công trình cải tạo trở nên dễ dàng, không yêu cầu đào sâu, giảm thiểu tác động đến kết cấu công trình.
Về kết cấu chịu lực, sàn thang được liên kết chặt chẽ với khung cabin thông qua hệ thống khung thép hàn hoặc bulông tiêu chuẩn. Phần khung này không chỉ chịu lực tĩnh mà còn phải chống rung lắc khi thang di chuyển, đảm bảo cảm giác vững chãi cho người dùng. Khi kết hợp với ray dẫn hướng gắn cố định vào giếng thang, toàn bộ cabin di chuyển mượt mà mà không gây tiếng ồn lớn.
Cơ chế vận hành an toàn của cấu tạo thang máy không hố pit phụ thuộc vào loại truyền động được sử dụng. Thông thường, các mẫu phổ biến hiện nay sẽ dùng hệ thống kéo cáp đối trọng kết hợp motor điện từ (Gearless) hoặc vít me – đai ốc (trong thang máy gia đình tải trọng nhỏ). Hệ thống thắng cơ (brake) luôn được tích hợp tại motor, tự động khóa cabin khi không hoạt động hoặc khi mất điện.
Ngoài ra, dưới sàn cabin thường được lắp thiết bị chống rơi tự do (safety gear) và giảm chấn (buffer). Mặc dù không có hố pit sâu, bộ giảm chấn vẫn đảm bảo khả năng hấp thụ lực trong trường hợp khẩn cấp, bảo vệ người bên trong. Với các dòng thang thủy lực, hệ thống van khóa an toàn cũng được tích hợp để ngăn cabin tụt xuống khi đường ống thủy lực gặp sự cố.
Một yếu tố khác cần nhắc đến là cảm biến tải trọng dưới sàn. Cảm biến này giúp nhận biết khi tải vượt quá giới hạn cho phép, từ đó phát tín hiệu cảnh báo và ngăn thang hoạt động cho đến khi tải trọng trở lại mức an toàn. Đây là yếu tố đặc biệt quan trọng đối với gia đình có người già hoặc trẻ nhỏ, khi sự an toàn phải được ưu tiên hàng đầu.
Trong các thiết kế mới của cấu tạo thang máy không hố pit, sàn cabin còn được tối ưu về chống rung và chống ồn. Lớp đệm cao su kỹ thuật hoặc vật liệu composite đặt giữa khung sàn và tấm lót bề mặt giúp giảm truyền rung động từ hệ thống truyền động lên cabin. Nhờ vậy, ngay cả khi thang hoạt động ở tốc độ cao, người sử dụng vẫn cảm nhận sự êm ái, không bị khó chịu.
Thẩm mỹ của sàn cabin cũng là một yếu tố Faralift chú trọng. Khách hàng có thể tùy chọn màu sắc, vật liệu, họa tiết ốp sàn sao cho hài hòa với nội thất tổng thể. Đây là điểm cộng lớn giúp thang máy không chỉ là phương tiện di chuyển, mà còn là một phần của kiến trúc ngôi nhà.
Tóm lại, sàn thang và cơ chế vận hành an toàn là một trong những thành phần then chốt quyết định trải nghiệm của người dùng với cấu tạo thang máy không hố pit. Sự kết hợp giữa vật liệu bền chắc, thiết kế tinh gọn, cơ chế an toàn đa tầng và khả năng tùy biến thẩm mỹ giúp dòng thang này trở thành lựa chọn tối ưu cho nhiều công trình dân dụng hiện nay.

Kết luận về cấu tạo thang máy không hố pit
Khi tổng kết lại, có thể thấy cấu tạo thang máy không hố pit là một bước tiến vượt bậc trong lĩnh vực thiết kế và lắp đặt thang máy gia đình. Sự ra đời của dòng thang máy này không chỉ nhằm giải quyết vấn đề kỹ thuật ở những ngôi nhà không đủ điều kiện đào hố pit, mà còn mở ra nhiều lựa chọn linh hoạt hơn cho chủ nhà.
Thay vì phải lo lắng về việc thay đổi nền móng hay ảnh hưởng tới kết cấu tổng thể, giờ đây chủ sở hữu có thể tận dụng mọi khoảng không gian sẵn có để lắp đặt một hệ thống thang máy hiện đại, an toàn và thẩm mỹ.
Điểm đáng chú ý là cấu tạo thang máy không hố pit được tinh gọn nhưng vẫn đảm bảo đầy đủ các bộ phận thiết yếu như hệ thống cabin, ray dẫn hướng, bộ tời máy kéo hoặc thủy lực, bảng điều khiển và các thiết bị an toàn. Dù không có hố pit sâu như thang máy truyền thống, hệ thống vẫn được bố trí phần đế chịu lực hoặc khung thép nâng đỡ để đảm bảo quá trình vận hành ổn định, giảm rung lắc và hạn chế tiếng ồn.
Từ góc nhìn sử dụng, loại thang này mang lại lợi ích tối đa cho những gia đình sống trong nhà phố, nhà cải tạo hoặc công trình có nền móng yếu. Không cần thi công phức tạp, thời gian lắp đặt rút ngắn, giảm chi phí phát sinh từ các hạng mục xây dựng phụ. Đây chính là yếu tố giúp nhiều gia đình sẵn sàng lựa chọn giải pháp này, nhất là khi nhu cầu nâng cao tiện nghi và hỗ trợ người lớn tuổi, trẻ nhỏ ngày càng trở nên cấp thiết.
Ngoài ra, khi tìm hiểu cấu tạo thang máy không hố pit, chủ nhà sẽ nhận ra rằng mỗi chi tiết đều được thiết kế để tối ưu sự an toàn. Ví dụ, cảm biến cửa, hệ thống thắng cơ, bộ cứu hộ tự động khi mất điện, hay cơ chế chống trượt đều được tích hợp đầy đủ. Điều này giúp người dùng yên tâm hơn trong quá trình vận hành hằng ngày.
Về mặt thẩm mỹ, do không bị giới hạn bởi hố pit, chủ nhà có thể chọn nhiều mẫu mã cabin, vật liệu và kiểu cửa khác nhau để phù hợp với phong cách kiến trúc. Từ kính cường lực trong suốt giúp không gian thêm rộng mở, đến gỗ ấm áp tạo cảm giác sang trọng, tất cả đều có thể kết hợp linh hoạt mà không ảnh hưởng tới hiệu suất hoạt động của thang máy.
Một yếu tố khác không thể bỏ qua là khả năng bảo trì, bảo dưỡng. Nhờ cấu tạo thang máy không hố pit gọn nhẹ, kỹ thuật viên dễ dàng tiếp cận các bộ phận cần kiểm tra hoặc thay thế. Điều này không chỉ giúp tiết kiệm thời gian mà còn giảm rủi ro phát sinh hỏng hóc lớn. Trong quá trình sử dụng, chủ nhà chỉ cần tuân thủ lịch kiểm tra định kỳ và vệ sinh cơ bản là đã có thể duy trì tuổi thọ thang máy lâu dài.
Có thể nói, sự xuất hiện của loại thang này đã mở ra một hướng đi mới cho ngành thang máy, đáp ứng nhu cầu của những công trình vốn trước đây khó hoặc không thể lắp đặt thang máy truyền thống. Điều quan trọng là người dùng cần lựa chọn đơn vị thiết kế – lắp đặt uy tín, am hiểu rõ cấu tạo thang máy không hố pit để đảm bảo mọi tiêu chuẩn an toàn, vận hành và thẩm mỹ đều được đáp ứng.
Khi cân nhắc đầu tư, mỗi gia đình nên xem xét kỹ không gian hiện có, nhu cầu sử dụng, khả năng tài chính và đặc biệt là mong muốn về phong cách thiết kế. Nếu những yếu tố này được kết hợp hài hòa, cấu tạo thang máy không hố pit sẽ không chỉ là giải pháp di chuyển tiện lợi mà còn là điểm nhấn nâng tầm giá trị ngôi nhà.
➡️ Tìm hiểu chi tiết thêm về thang máy Faralift

————————————
CÔNG TY CỔ PHẦN THANG MÁY FARALIFT
📞 Hotline: 0888 335 656
📩 E-mail: info@thangmayfaralift.com
🌐 Website:
https://thangmayfaralift.com
https://faraparking.com
📍 Trụ sở chính tại Hà Nội: Tầng 1, Tòa nhà Green Diamond, 93 Láng Hạ, Đống Đa, Hà Nội
📍 VP TP Hồ Chí Minh: 166 Nguyễn Công Trứ, Phường Nguyễn Thái Bình, Quận 1, Thành phố Hồ Chí Minh
📍 VP Đà Nẵng: 142 Nguyễn Thị Minh Khai, Phường Hải Châu, Quận Hải Châu, Thành Phố Đà Nẵng
